Sechs neue Einfamilien-Reihen-Häuser
Exklusives Wohnen in Balzers (LI)Tag der offenen Tür – Samstag, 25. April, 10-16 Uhr
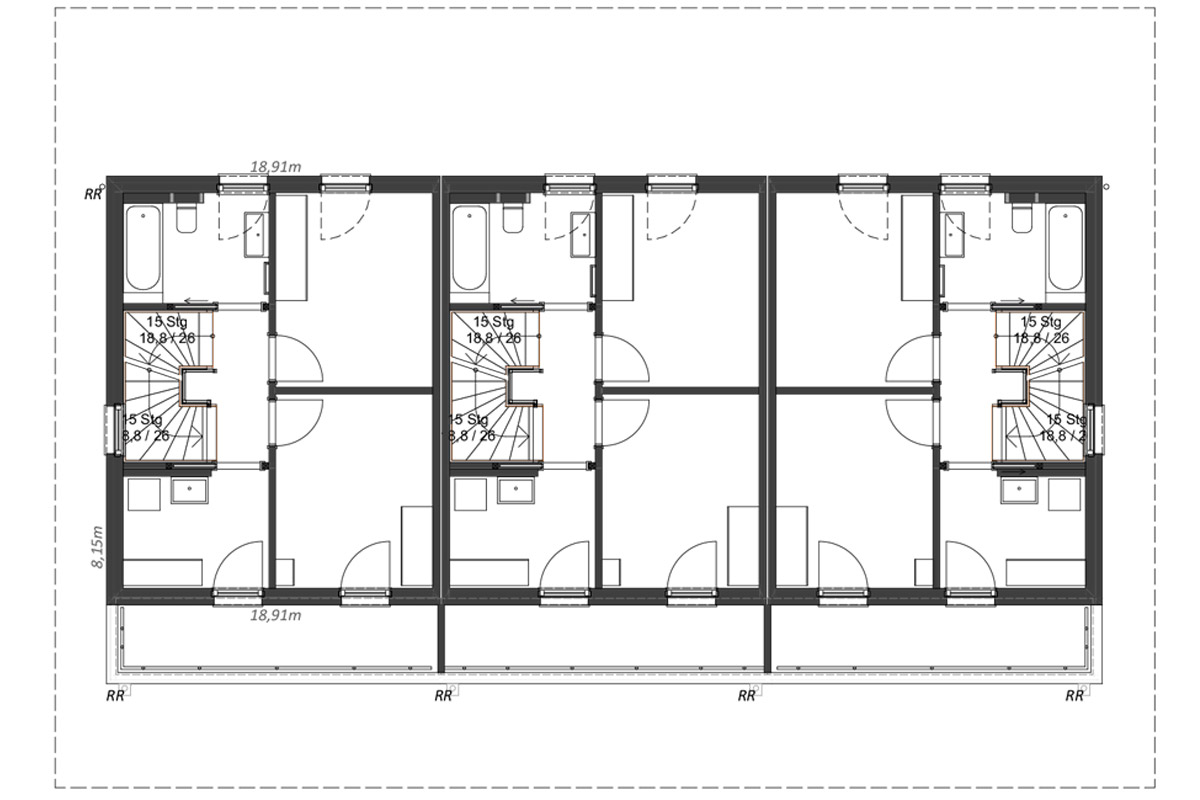
Grashalda 19a, 19b, 19c und 21A, 21b, 21C
Sechs Einfamilien-Reihen-Häuser ab Mai 2026
CHF ab 2.950 inkl. Nebenkosten p.m. (7 ½ Zimmer)
Ab März 2026
Exklusives Paradies für junge Familien
Ein Zuhause, das mehr als nur vier Wände bietet – willkommen in Balzers, einer der begehrtesten Wohnlagen, die modernen Komfort mit idyllischer Natur vereint. Die Reihen-Einfamilien-Häuser erstrecken sich auf vier Etagen und bieten grosszügigen Wohnraum, ideal für Familien, die Ruhe und Exklusivität suchen.
Durchdachte Grundrisse, hochwertige Materialien und eine nachhaltige Bauweise machen diese Immobilie zu einem einzigartigen Wohntraum.
Adresse: Balzers, Grashalda 19a, 19b, 19c, 21a, 21b, 21c
Haus 19a reserviert
auf einen Blick
Wissenswertes zum Bauprojekt
Kosten
Nettomiete inklusive Nebenkosten:
CHF 2.950 p.m. (innenliegend) und
CHF 3.250 p.m. (aussenliegend)
Auf einen Blick
- Wohnlage: Ruhige Umgebung (Sackgasse) mit fussläufiger Anbindung an das Dorfzentrum
- Ausstattung: Hochwertige Innenausstattung mit modernen Elementen (voll möbliert, Einbaumöbel)
- Energieeffizienz: Nachhaltige Bauweise mit niedrigen laufenden Kosten (PV, Wärmepumpe)
- Parken: Jeweils ein Aussenparkplatz und Garage im Erdgeschoss
- Verfügbarkeit: Mai 2026
Netto-Gesamtfläche: 192 m²
- Nettowohnfläche: 141.23 m²
- Nettonebenfläche: 31.14 m² (Garage 16.92, Keller 8.00, Technik 6.22)
- Terrasse: 11.88 m²
- Balkon: 7.53 m²
- Netto-Gesamtfläche: 191.78 m² Flächendefinition gemäss CH-SIA 416
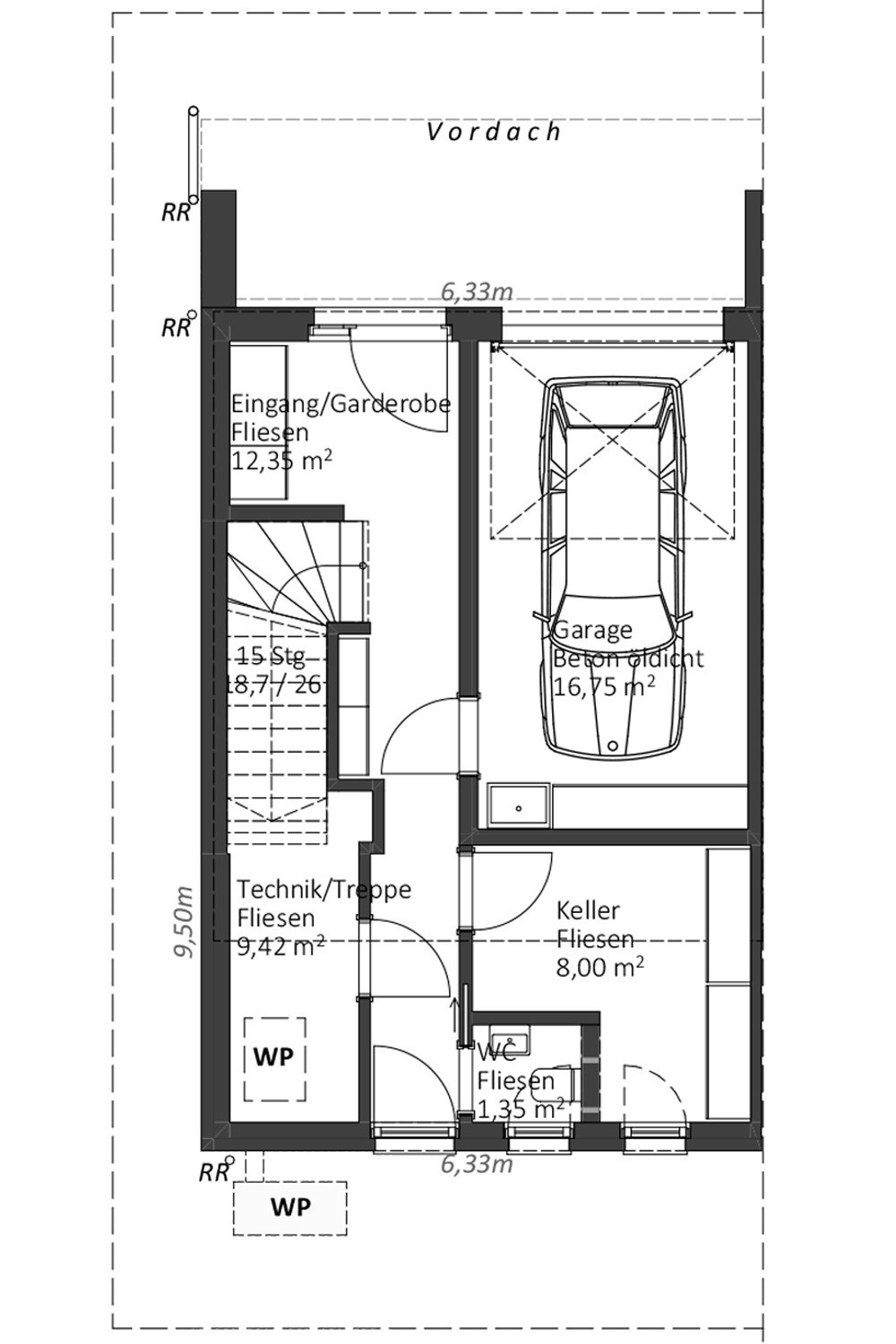
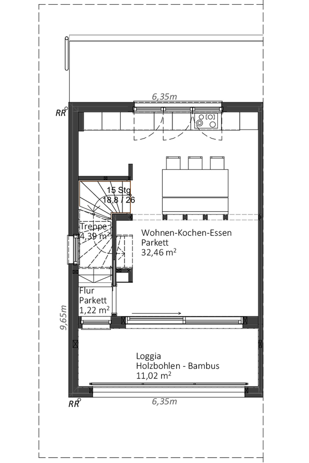
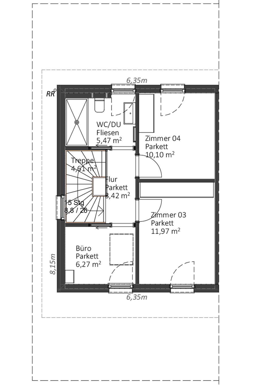
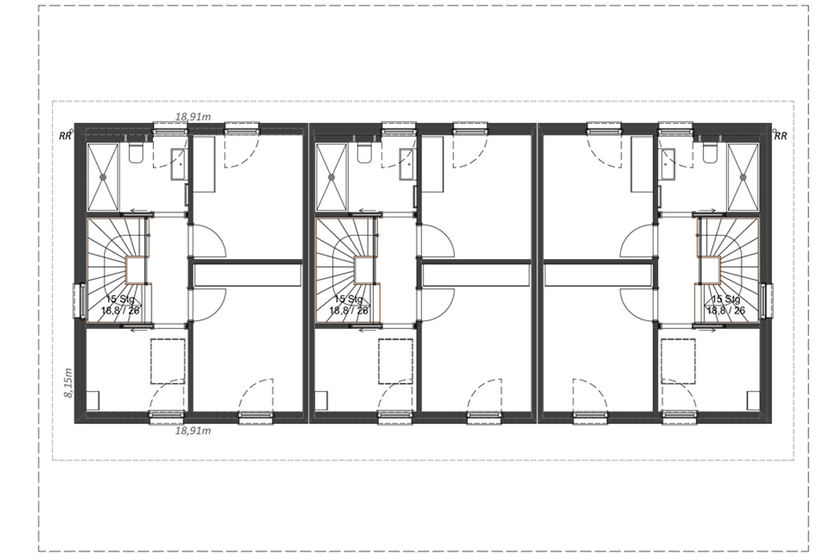
Wohnen auf vier Etagen
Vier Schlafzimmer zusätzlich ein Büro und Wirtschaftsraum
- EG: Garage, Eingangsbereich mit Garderobe, Technik, Keller, Gäste-WC
- 1.OG: Küche mit Ess- und Wohnbereich, gedeckte Terrasse
- 2.OG: Zwei Schlafzimmer, Wirtschaftsraum, BAD/WC, Balkon
- DG: Zwei Schlafzimmer, Büro, Dusche/WC
Raumangebot – speziell für Familien
- 7 ½ Zimmer
- Zwei Badezimmer
- Gäste-WC im Erdgeschoss
- Gedeckte Terrasse im 1. OG (im Anschluss zum Wohnzimmer)
- Balkon im 2. OG
- Garage (EG)
- PKW-Aussenabstellplatz
- Kleiner Hausgarten
Schreinerarbeiten und Geräte
- Küche: Kochzeile, Vorratsschrank, AEG-Geräte, integrierter Sitzbank im Ess- und Sideboard im WZ
- Bäder/WC: Unterschränke und Spiegelschränke
- Schlafzimmer: Raumhohe Einbauschränke und offenes raumhohes Regal, LED Beleuchtung
- Büro: Schreibtisch, Regale
- Wirtschaftsraum: Schränke, Regale
- Garderobe: offene Regale, geschlossene Schränke inkl. Spiegelwand und grosser Schuhschrank
- Garage: Regale
- Abstellraum im EG: Regale
- Hochwertige Massivholzwangentreppen
- Parkettboden, Eiche rustikal
- Insektenschutz (Mückennetze an allen Fenstern und Türen)
- Leuchten, Lampen, Spots
- Internetanschluss in jedem Zimmer
Ausstattung
Raumhohe Einbauschränke mit LED Beleuchtung in allen Zimmern
Zuhause ist dort, wo es am schönsten ist, wo man sich am wohlsten fühlt – und genau das ist unser Ziel. Möbel für die Küche, Wohnzimmer, Schlafzimmer, Badezimmer, Einbauschränke, Raumteiler haben wir verwirklicht. Philosophie ist, dass die junge Familien nicht mit hohen Einrichtungskosten konfrontiert ist.
Raumhohe Einbauschränke in den vier Schlafzimmern, der Garderobe, im Büro und im Wirtschaftsraum zählen zur Grundausstattung. Die Garage und der Keller sind mit praktischen Stelllagen bestückt.
Leuchten, Insektenschutz, Böden
Erwähnenswert ist der Insektenschutz bei allen Fenstern und Türen, ebenso die komplette Ausstattung mit Lampen, Leuchten und Spots. Eichenparkettböden sowie keramische Bodenbeläge in den Nasszellen und Räumen im Erdgeschoss sind wichtige Ausstattungsmerkmale.
Geringe laufende Kosten
Da jedes einzelne Familien-Reihen-Haus über eine eigene Luftwärmepumpe (Heizen bzw. Kühlen) und Photovoltaikanlage verfügt, liegt es in den Händen des jeweiligen Mieters über den Grossteil seiner laufenden Kosten zu entscheiden. Dies nicht zuletzt aufgrund der individuell steuerbaren Raumtemperatur in jedem Zimmer. Die Gebühren für Strom und Wasser führt der jeweilige Mieter direkt ab. Die Grundsteuer, Schneeräumung, Instandhaltung der Allgemeinflächen, Versicherung und Verwaltungskosten sind im Mietpreis inkludiert.
Technik
Luftwärmepumpe, Photovoltaikanlage, Wasserenthärtungsanlage, Glasfaseranschluss, IT-Netzwerk, Ladestation für E-Auto, Türöffner mit Fingerprintsystem, Gegensprechanlage, elektrische Lamellenstoren, Mückenschutz bei Fenster und Türen. Zweifelsfrei eine hochwertige technische Infrastruktur.
Platz fürs Leben
Ökologischer Wohnbau Holzriegelbau
Die Reihenhäuser vereinen eine nachhaltige Holzbauweise und modernste Technik. Holz ist der natürlichste und älteste Baustoff, der die Umwelt schont und lebenslänglich viel wertvolles CO₂ speichert. Der ökologische Holzriegelbau, das innovatives Energiekonzept mit der hochwärmedämmenden Aussenwand, Wärmepumpe, die Dach-Photovoltaik-Anlage gepaart mit der extensiv begrünten Dachfläche unterstützt das Klima, bietet höchsten Wohnkomfort und garantiert geringe Betriebskosten.
Bei der Planung der Reihenhäuser ließen sich das erfahrene Team bei Verling Architekten Zeit um mit Empathie bewährte Technologie und innovative Regionalität umzusetzen. Durch den hohen Vorfertigungsgrad von Hartl Haus stehen unsere Reihenhäuser in nur wenigen Wochen.
Spielstrasse
Wohnzone A
Mikrolage (Einkaufen, Schule, etc.)
- Einkaufen: ca. 1km Coop / 1.5km Migros
- Öffentlicher Verkehr: ca. 400 m
- Autobahnanschluss: ca. 2.5 km
- Kindergarten: ca. 600 m
- Primarschule: ca. 800 m
- Zone: Wohnzone A
Architekturbüro
Verling Architekten, Vaduz in enger Zusammenarbeit mit Hartl Haus
Bauland
- Balzers, NR 1456 mit 1.153 m2 (Wohnzone A, Alleineigentum Andreas INSAM)
- Balzers, NR 1701 mit 334 m2 (Zufahrtsstrasse, Miteigentum Andreas Insam)
- Süd – West Ausrichtung, sehr ruhige Wohnlage, Nähe Zentrum
- Sackgasse
- Grundanteil je Reihenhaus inkl. anteilige Allgemeinflächen: zwischen 191 m2 und 260 m2
Einen Einblick in Ihr neues Zuhause
Grundrisse Grashalda 19a, 19b, 19c (ident mit 21a, 21b, 21c)
Traumhaus im Fürstentum Liechtenstein
Balzers
In Balzers, einem charmanten Ort im Süden Liechtensteins, vereinen sich Tradition und Moderne. Die Region bietet hohe Lebensqualität und eine atemberaubende Naturlandschaft, die von den Hügeln des Liechtensteiner Waldes bis zum Schloss Gutenberg reicht. Balzers verbindet eine ruhige, naturnahe Umgebung mit einer hervorragenden Anbindung an Städte wie Vaduz, Zürich und Feldkirch, was es zu einem begehrten Wohnort macht. Der historische Charme des Ortes ergänzt sich mit modernen Wohnlösungen und komfortablen Lebensräumen.
Der Ort liegt verkehrsgünstig an der Grenze zu Österreich und der Schweiz, was Pendlern und Reisenden zugutekommt. Balzers hat sich als attraktives Zentrum für Familien und Berufspendler etabliert. Es gibt gute Verkehrsanbindungen, Einkaufsmöglichkeiten, Schulen und Freizeitangebote in unmittelbarer Nähe. Weitere Infos finden Sie unter www.balzers.li
statistik
Balzers
Lage: 460 m. ü. M.
Fläche: 11,6 km²
Einwohnerzahl: ca. 5.600
Gemeinde: Balzers
Autobahnanschluss: A13, 4,5 km
Distanz zur Stadt Vaduz: 10 km
Distanz zu Sargans: 10 km
Aus- und Weiterbildung
Kindergärten
Zu den Gemeindeschulen Balzers gehören die drei Kindergärten Iramali, Mariahilf und Heiligwies und die Primarschule, die sowohl pädagogisch wie organisatorisch eine Einheit bilden.
Kindergärten
Für die Jüngsten unterhält die Gemeinde Balzers drei Kindergärten Heiligwies (Heiligwies 24), Mariahilf (Eichholz 3) und Iramali (Fürstenstrasse 56 – jene Einrichtung welche räumlich den Reihenhäusern am nächsten gelegen ist).
Primarschule
Die Primarschule wird von Kindern aus allen Dorfteilen besucht. Für Balzers als Wohngemeinde ist es eine Bereicherung, dass sich die Primarschule im Zentrum befindet, denn durch die Kinder wird dieses belebt und bildet das Herzstück von Balzers. Während die Gemeinde für die Bereitstellung von gepflegten Gebäuden und deren Ausstattung zuständig ist, liegt in bildungspolitischer Hinsicht die Leitung beim Land.
Liechtensteinische Musikschule
Die Liechtensteinische Musikschule bietet Musikinteressierten aller Altersstufen einen individuellen, vielseitigen und modernen Unterricht. Gruppenkurse für Kinder gehören ebenso wie alle gängigen Instrumentalfächer, Gesang und Theorie zu ihrem Angebot. Die Lehrpersonen sind ausgebildete Musikerinnen und Musiker mit Diplomabschluss einer anerkannten Musikhochschule oder eines Konservatoriums. Die Lehrpersonen der Liechtensteinischen Musikschule geben auch Unterricht in Balzers.
Weiterführende Schulen
Nach Abschluss der Primarschule stehen den Schulkindern verschiedene weiterführende Schulen offen. In Balzers selbst kann die Realschule besucht werden.
Kindertagesstätte
Die KiTa Balzers stellt 14 Betreuungsplätze in einer altersgemischten Gruppe zur Verfügung. Es werden Kinder zwischen 4 Monaten und 4 Jahren betreut.
Der Verein Kindertagesstätten Liechtenstein, gegründet im Jahr 1989, betreibt neben der Kindertagesstätte in Balzers auch Kindertagesstätten in verschiedenen Gemeinden des Fürstentums Liechtenstein. Die Kindertagesstätten wollen mit Herz und Verstand sowie Professionalität Kindern schöne und bereichernde Erfahrungen ermöglichen. Ausserdem sollen Eltern resp. Erziehungsberechtigte durch ihr Angebot bei der Verwirklichung ihrer beruflichen, familiären und persönlichen Bedürfnisse unterstützt werden.
Der Verein Kindertagesstätten ist eine Non-Profit-Organisation, die nach betriebswirtschaftlichen Grundsätzen geführt wird. Die Aufwendungen und Investitionen werden über Gelder der öffentlichen Hand, Beiträgen der Eltern und Erziehungsberechtigten, Spenden und Zuwendungen aus der Wirtschaft finanziert. Durch diese Unterstützungen können sie eine sozialverträgliche, vom Bruttofamilieneinkommen der Erziehungsberechtigten abhängige Tarifstruktur anbieten.
Information: Kindertagesstätte (KITA), Alberweg 11, 9496 Balzers, T +423 340 20 38, balzers@kita.li, www.kita.li/unsere-kitas/balzers/
Tagesstrukturen
Die Tagesstrukturen in Balzers werden vom Verein Kindertagesstätten Liechtenstein, der auch die KiTa in Balzers betreut, angeboten. Die Tagesstrukturen in Balzers wurden im Januar 2018 eröffnet. Kinder zwischen 4 und 12 Jahren werden hier betreut. Die einzelnen Betreuungseinheiten können frei gewählt und kombiniert werden, wobei verschiedene Bedürfnisse während der Schul- und Ferienzeit berücksichtigt werden können.
Tagesstrukturen, Alberweg 16, 9496 Balzers
Spielgruppen
Die Spielgruppe eröffnet den Kindern eine ganz neue Welt. So findet erstmalig eine Betreuung der ca. dreijährigen Kinder bis zum Kindergarteneintritt ohne Beisein der Eltern statt. Dies ist zwar ein kleiner Schritt, jedoch ein Meilenstein im Leben eines Kindes. Die Schulung des sozialen Umgangs mit anderen Kindern steht im Mittelpunkt. Somit werden die Kinder bestmöglich für den kommenden Lebensabschnitt vorbereitet.
Raumspielgruppe Heiligwies Balzers
Die Spielgruppe Heiligwies durfte seit dem Jahre 1982 viele Kinder beim Spielen, Lachen, Weinen und ,,Gross werden“ zusehen und begleiten. Die vielen wertvollen Erfahrungen machen den Charme der Raumspielgruppe aus, welche sich im obersten Stockwerk des Kindergartens Heiligwies (Heiligwies 24 in Balzers) befindet.
Raumspielgruppe und Waldspielgruppe Villa Kunterbunt Balzers
Auch die Spielgruppe Villa Kunterbunt steht für jedes Kind offen. Nennenswert bei dieser Spielgruppe ist das Waldspielgruppen-Angebot und das integrierte Malatelier. Neben der Raumspielgruppe die sich im Mühlesträssle 22 befindet, besitzt sie einen Waldspielgruppenplatz im Naturschutzgebiet St. Katrinabrunna.
Bauernhofspielgruppe Hö-Gumper
Kinder lieben Bauernhöfe mit ihren Tieren und Maschinen. Mit der Gründung der ersten Bauernhofspielgruppe Liechtensteins auf dem Walkerhof in Balzers bietet sich nun die Möglichkeit der naturnahen Frühförderung für Kinder im Alter von 3 bis 5 Jahren. Ausführlichere Angaben zu Angebot, Betreuuung, Kontakt und Standorten finden Sie unter Spielgruppen Balzers.
Familienzentrum Balzers
Betreuung
Das Kind für eine bestimmte Zeit in guten Händen wissen.
… zum Beispiel in den Spielgruppen.
Beratung
Sich von Fachpersonen beraten lassen und erfahren, wen man noch fragen kann.
… zum Beispiel bei einem ungezwungenen Gespräch mit der Geschäftsleitung, einem Vorstandsmitglied oder im Café.
Information: Familienzentrum Balzers, Heiligwies 24,
Tel. +423 781 24 24, info@familienzentrum.li
Wissenswertes
Bevölkerung
Balzers hat eine stetig wachsende Bevölkerung. Mit etwa 5.600 Einwohnern zählt der Ort zu den grössten Gemeinden im Süden Liechtensteins. Die Bevölkerung setzt sich aus einer ausgewogenen Mischung von Familien, Singles und Senioren zusammen. Besonders beliebt ist Balzers bei jungen Familien und Berufspendlern aufgrund seiner Ruhe und den kurzen Anfahrtszeiten zu grösseren Städten.
Ein Grossteil der Einwohner ist im Arbeitsalter, was zur positiven Dynamik in der Region beiträgt.
0–19 Jahre: 20 %
20–39 Jahre: 30 %
40–64 Jahre: 35 %
65+ Jahre: 15 %
Wissenswertes
Umgebung & Freizeit
Balzers bietet seinen Bewohnern ein ideales Umfeld für Naturfreunde und Aktivurlauber. Neben zahlreichen Wander- und Radwegen ist das nahegelegene Schloss Gutenberg ein beliebtes Ausflugsziel, das nicht nur einen historischen Einblick in die Region gewährt, sondern auch für verschiedene Veranstaltungen und Konzerte bekannt ist. Die Umgebung bietet zudem ausgezeichnete Möglichkeiten für Sport und Freizeitaktivitäten. Der idyllische Liechtensteiner Wald lädt zu ausgedehnten Spaziergängen und Wanderungen ein, während in den Wintermonaten die Skigebiete in der Umgebung auf ihre Besucher warten.
Balzers liegt in unmittelbarer Nähe zur Gemeinde Sargans sowie zu den Städten Vaduz und Feldkirch, die eine Vielzahl an kulturellen und sportlichen Aktivitäten bieten.
Die Umgebung
Lageplan
Interessiert?
Andreas INSAM
+423 794 9135
a.insam@gmail.com










